Nieuwbouwwoning met 3 slaapkamers
Vraagprijs
Moderne nieuwbouwwoning gelegen in een rustige woonomgeving in Houthalen-Helchteren met tegelijk vlotte bereikbaarheid naar omliggende steden en invalswegen. U woont dicht bij winkels, scholen en openbaar vervoer en geniet van groen, wandel- en fietsroutes in de buurt. Ideaal voor wie comfortabel en rustig wil wonen zonder in te boeten aan praktische nabijheid.
Deze woning wordt gebouwd en volledig afgewerkt volgens uw smaak en wensen. Binnen het afgesproken budget kiest u zelf de afwerking van onder andere de keuken, badkamer, vloeren, binnendeuren en trap. Zo ontstaat een warme thuis die helemaal bij u past, zonder kopzorgen.
De woning beschikt over het volgende:
• Perceel: 3a 52ca
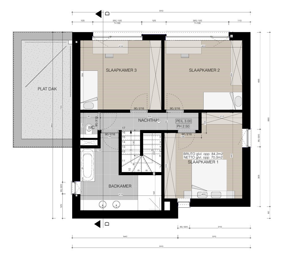
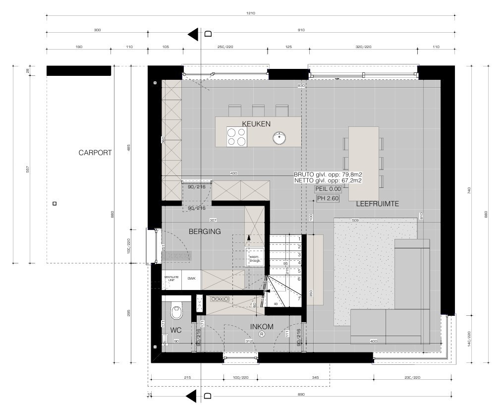
• Bewoonbare oppervlakte: ca. 163 m²
• 3 ruime slaapkamers – ideaal voor gezinnen
• Ventilatie type D voor een gezond en comfortabel binnenklimaat
• Eigen autostaanplaats voor veilig en zorgeloos parkeren
• Topligging: dichtbij winkels, scholen en openbaar vervoer
• Groene omgeving met mooie wandel- en ... fietsroutes
Prijsinformatie
• Grondprijs: 160.000 euro
• Constructie: 302.000 euro
• Aankoopkosten:
• 12% registratierechten op de grond: 19.200 euro
• 21% btw op de constructie: 63.420 euro
• Totale prijs: 544.620 euro (exclusief notaris, nutsvoorziening, leningskosten)
Deze nieuwbouwwoning combineert ruimte, kwaliteit, energiezuinig wonen en een uitstekende ligging in een aangename woonomgeving.
Interesse? Onze makelaar Claudia Profeta begeleidt u graag van A tot Z door het volledige aankoopproces en helpt u met plezier bij het realiseren van uw droomwoning.
Neem contact met ons op voor meer informatie of om een afspraak in te plannen.
📞 +32 89 20 90 88
✉️ info@sensimmo.be
🌐 www.sensimmo.be
Wacht niet langer en zet de eerste stap naar uw nieuwe thuis! Lees meer Verberg
Deze woning wordt gebouwd en volledig afgewerkt volgens uw smaak en wensen. Binnen het afgesproken budget kiest u zelf de afwerking van onder andere de keuken, badkamer, vloeren, binnendeuren en trap. Zo ontstaat een warme thuis die helemaal bij u past, zonder kopzorgen.
De woning beschikt over het volgende:
• Perceel: 3a 52ca
• Bewoonbare oppervlakte: ca. 163 m²
• 3 ruime slaapkamers – ideaal voor gezinnen
• Ventilatie type D voor een gezond en comfortabel binnenklimaat
• Eigen autostaanplaats voor veilig en zorgeloos parkeren
• Topligging: dichtbij winkels, scholen en openbaar vervoer
• Groene omgeving met mooie wandel- en ... fietsroutes
Prijsinformatie
• Grondprijs: 160.000 euro
• Constructie: 302.000 euro
• Aankoopkosten:
• 12% registratierechten op de grond: 19.200 euro
• 21% btw op de constructie: 63.420 euro
• Totale prijs: 544.620 euro (exclusief notaris, nutsvoorziening, leningskosten)
Deze nieuwbouwwoning combineert ruimte, kwaliteit, energiezuinig wonen en een uitstekende ligging in een aangename woonomgeving.
Interesse? Onze makelaar Claudia Profeta begeleidt u graag van A tot Z door het volledige aankoopproces en helpt u met plezier bij het realiseren van uw droomwoning.
Neem contact met ons op voor meer informatie of om een afspraak in te plannen.
📞 +32 89 20 90 88
✉️ info@sensimmo.be
🌐 www.sensimmo.be
Wacht niet langer en zet de eerste stap naar uw nieuwe thuis! Lees meer Verberg