Opendeurdag Zaterdag 28/2 van 10u - 13u
Vraagprijs
!!!Opendeurdag Zaterdag 28/2 van 10u - 13u!!!
!!!Gelieve u tijdig in te schrijven!!!
Geniet van 6% btw – NIEUWBOUW (reeds gebouwd) in Oudsbergen – casco+
Droomt u van een energiezuinige nieuwbouwwoning die u nog volledig naar eigen smaak kunt afwerken?
In het charmante Oudsbergen vindt u deze halfopen bebouwing, reeds gebouwd in casco+. De ideale combinatie: u koopt een nieuwbouwwoning en werkt de woning verder af naar eigen smaak met het voordeel van 6% btw (onder voorwaarden).
Gelegen op wandelafstand van het centrum met winkels, scholen en openbaar vervoer in de onmiddellijke nabijheid. Ook natuurliefhebbers komen hier helemaal aan hun trekken bossen en groen liggen vlakbij.
Indeling:
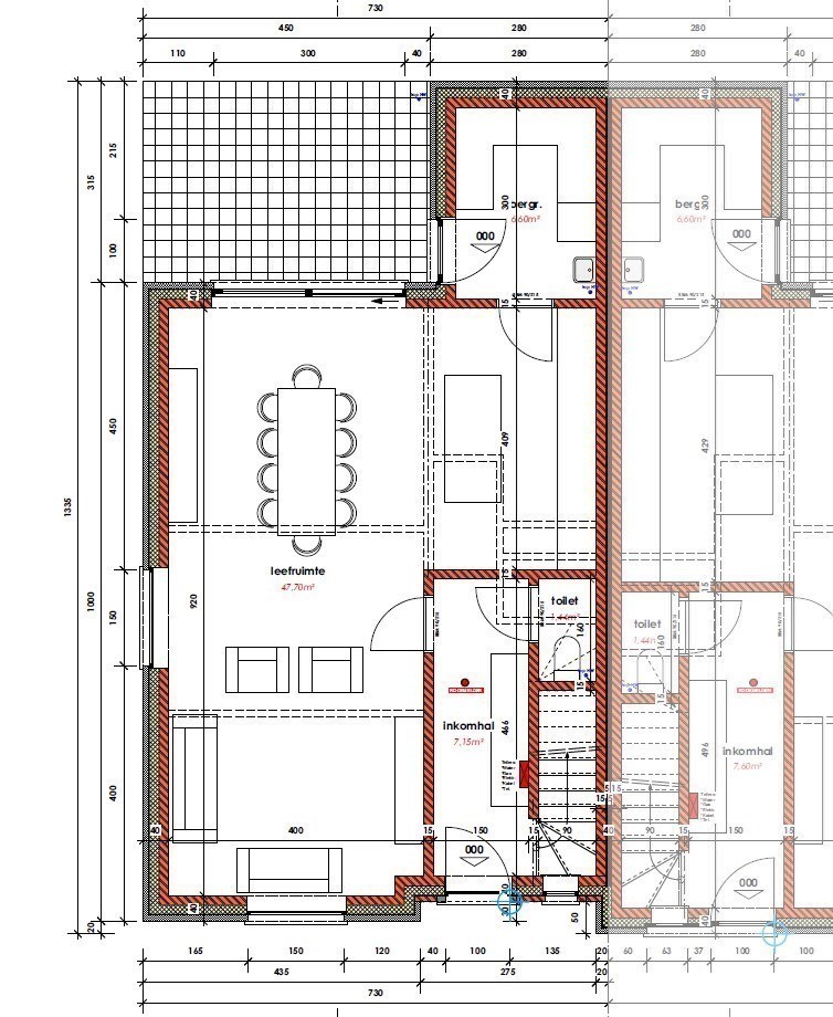
Gelijkvloers: inkomhal, gastentoilet, open leefruimte met woonkamer en keuken, berging met toegang tot de tuin via een buitendeur .
Eerste verdieping: 3 ruime slaapkamers, badkamer en een apart toilet.
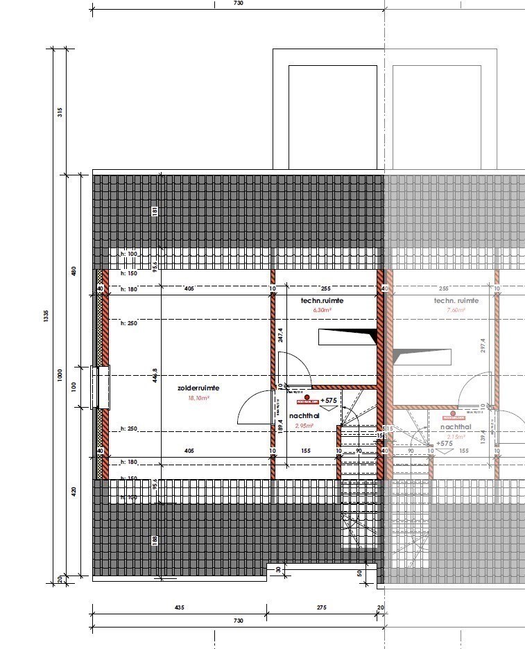
Zolderverdieping: vaste trap naar de zolder met een ruime oppervlakte, ideaal om een extra ruimte te voorzien bv. extra slaapkamer, bureel of ... hobbyruimte.
Buiten: terras en tuin.
Troeven op een rij:
* Perceel van ca. 4a
* Ca. 160 m² woonoppervlakte
* 3 ruime slaapkamers
* Ventilatie type D
* Vloerverwarming
* Casco+: kwalitatieve basisstructuur met maximale vrijheid in afwerking
* Zuidgerichte tuin en terras
* Eigen autostaanplaats voor comfortabel en veilig parkeren
* Nabij winkels, scholen en openbaar vervoer
* Ideale mix van rust en vlotte bereikbaarheid
* Doodlopende straat
Prijs (grondwaarde + constructie)
365.000 euro + 21.900 euro (6% btw) = 386.900 euro
Exclusief notariskosten en aansluitingen van nutsvoorzieningen.
Wenst u de woning volledig afgewerkt aan te kopen? Dat is zeker mogelijk en bespreekbaar.
Energiezuinig en toekomstgericht
Met een E-peil 30 is deze woning al bijzonder energiezuinig. Bovendien is er potentieel om met extra energiebesparende maatregelen en hernieuwbare energie te streven naar E-peil 0 (energieneutraal).
Een reeds gebouwde nieuwbouwwoning met zuidgerichte tuin, sterke ligging en vrijheid in afwerking: een kans die u niet wil missen.
Benieuwd naar de plannen en mogelijkheden? Neem gerust contact op voor meer info of een bezoek. Bel of mail nu naar:
📞 +32 89 20 90 88
✉️ info@sensimmo.be
🌐 www.sensimmo.be
Lees meer Verberg
!!!Gelieve u tijdig in te schrijven!!!
Geniet van 6% btw – NIEUWBOUW (reeds gebouwd) in Oudsbergen – casco+
Droomt u van een energiezuinige nieuwbouwwoning die u nog volledig naar eigen smaak kunt afwerken?
In het charmante Oudsbergen vindt u deze halfopen bebouwing, reeds gebouwd in casco+. De ideale combinatie: u koopt een nieuwbouwwoning en werkt de woning verder af naar eigen smaak met het voordeel van 6% btw (onder voorwaarden).
Gelegen op wandelafstand van het centrum met winkels, scholen en openbaar vervoer in de onmiddellijke nabijheid. Ook natuurliefhebbers komen hier helemaal aan hun trekken bossen en groen liggen vlakbij.
Indeling:
Gelijkvloers: inkomhal, gastentoilet, open leefruimte met woonkamer en keuken, berging met toegang tot de tuin via een buitendeur .
Eerste verdieping: 3 ruime slaapkamers, badkamer en een apart toilet.
Zolderverdieping: vaste trap naar de zolder met een ruime oppervlakte, ideaal om een extra ruimte te voorzien bv. extra slaapkamer, bureel of ... hobbyruimte.
Buiten: terras en tuin.
Troeven op een rij:
* Perceel van ca. 4a
* Ca. 160 m² woonoppervlakte
* 3 ruime slaapkamers
* Ventilatie type D
* Vloerverwarming
* Casco+: kwalitatieve basisstructuur met maximale vrijheid in afwerking
* Zuidgerichte tuin en terras
* Eigen autostaanplaats voor comfortabel en veilig parkeren
* Nabij winkels, scholen en openbaar vervoer
* Ideale mix van rust en vlotte bereikbaarheid
* Doodlopende straat
Prijs (grondwaarde + constructie)
365.000 euro + 21.900 euro (6% btw) = 386.900 euro
Exclusief notariskosten en aansluitingen van nutsvoorzieningen.
Wenst u de woning volledig afgewerkt aan te kopen? Dat is zeker mogelijk en bespreekbaar.
Energiezuinig en toekomstgericht
Met een E-peil 30 is deze woning al bijzonder energiezuinig. Bovendien is er potentieel om met extra energiebesparende maatregelen en hernieuwbare energie te streven naar E-peil 0 (energieneutraal).
Een reeds gebouwde nieuwbouwwoning met zuidgerichte tuin, sterke ligging en vrijheid in afwerking: een kans die u niet wil missen.
Benieuwd naar de plannen en mogelijkheden? Neem gerust contact op voor meer info of een bezoek. Bel of mail nu naar:
📞 +32 89 20 90 88
✉️ info@sensimmo.be
🌐 www.sensimmo.be
Lees meer Verberg