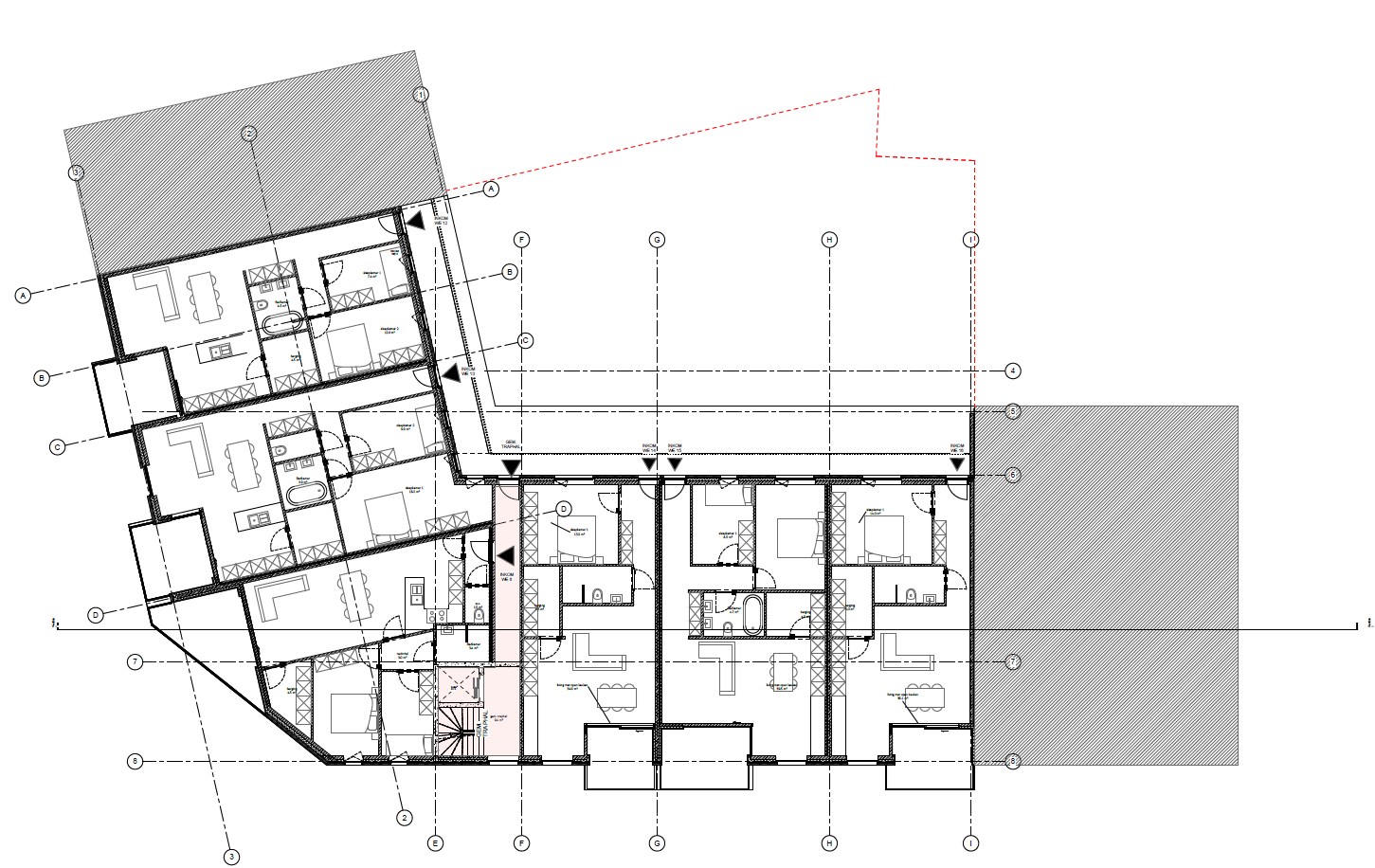
Bouwrijpe projectgrond met lopende vergunningsaanvraag voor 21 appartementen, grens van Genk en Houthalen
Vraagprijs
Een unieke opportuniteit voor projectontwikkelaars!
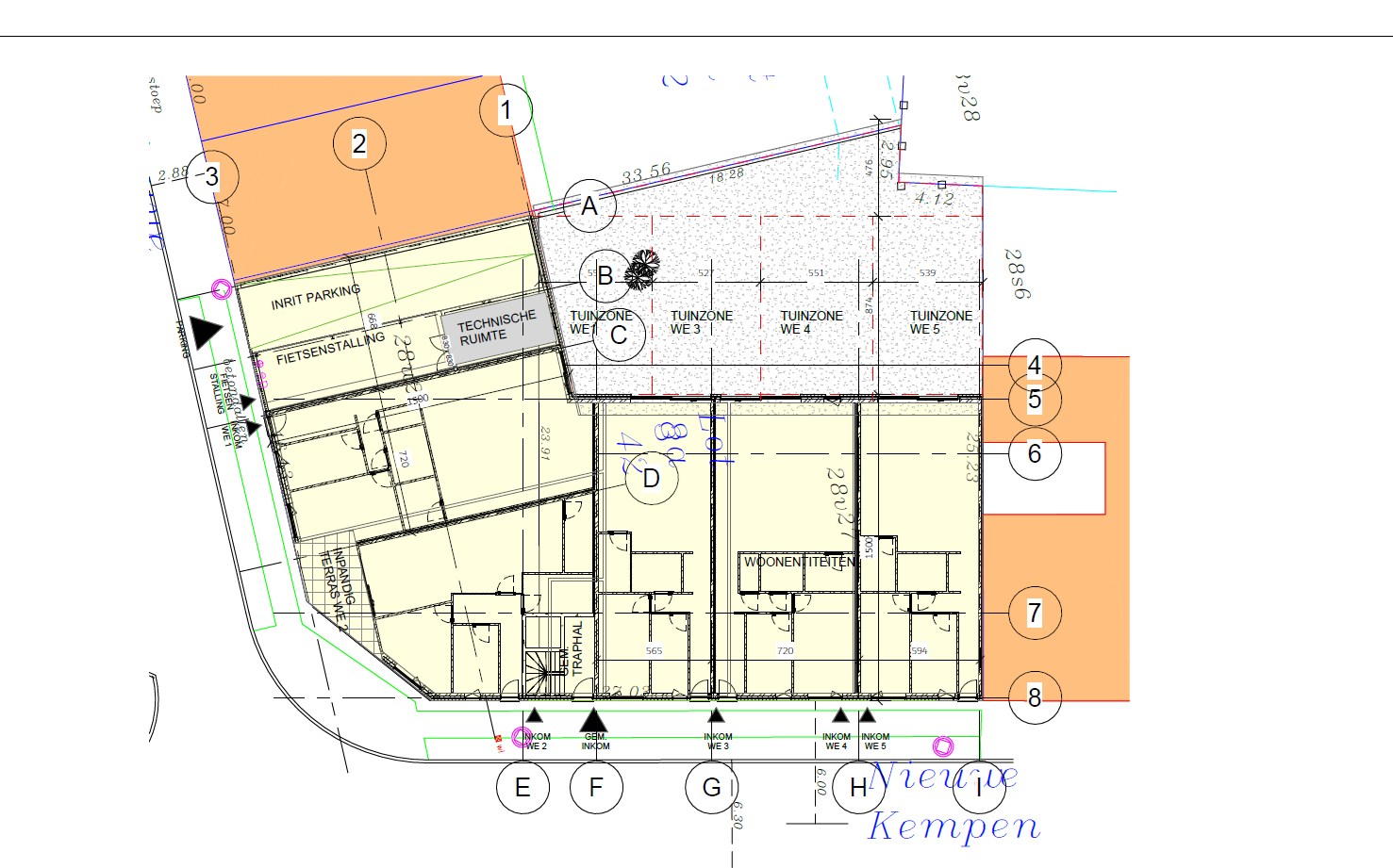
Dit bouwklare hoekperceel van ca. 8,5 are is rustig gelegen aan een charmant pleintje met voldoende parkeermogelijkheden, aan de Nieuwe Kempen 10. De ligging vormt een absolute troef: op de grens van Genk en Houthalen-Helchteren geniet u van een dubbele instroom aan potentiële kopers en huurders. Deze regio kent een sterke vraag naar kwalitatieve nieuwbouwappartementen, terwijl het aanbod beperkt blijft—een combinatie die zorgt voor een bijzonder interessant investeringsprofiel.
De omgeving biedt een aangename mix van rust en bereikbaarheid. Op korte afstand bevindt zich het uitgestrekte Nationaal Park Hoge Kempen, een absolute trekpleister voor natuurliefhebbers en recreanten. Daarnaast ligt ook Labiomista vlakbij, een unieke ontmoetingsplek waar kunst, natuur en erfgoed samenkomen. Dit maakt de locatie niet alleen aantrekkelijk voor bewoners, maar verhoogt ook de waarde en uitstraling van elk toekomstig project.
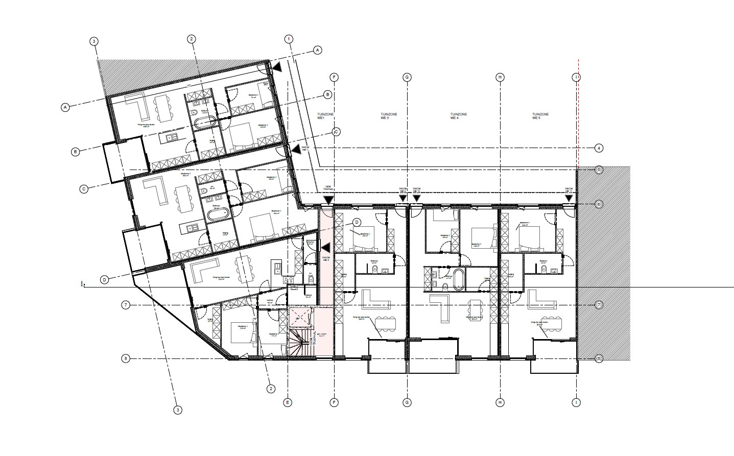
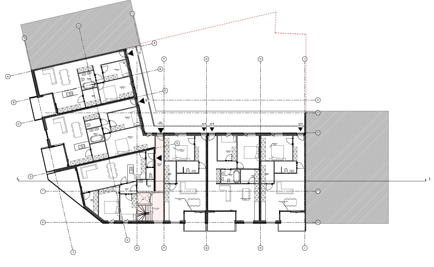
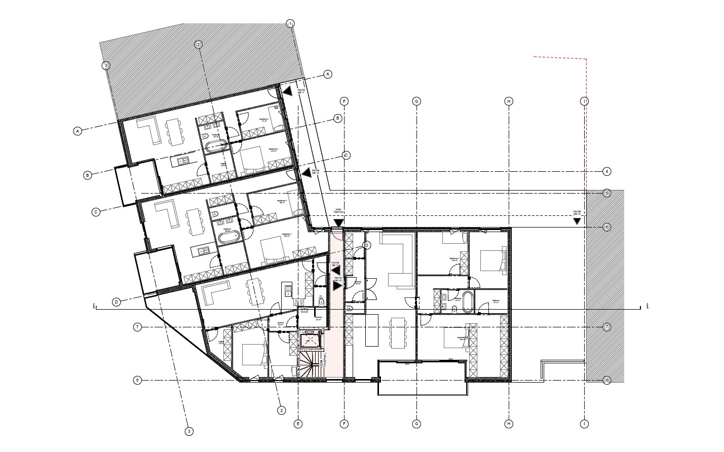
Het perceel is ideaal voor residentiële ontwikkeling. ... Momenteel loopt er een vergunningsaanvraag voor de realisatie van 21 appartementen. De verkoop zal plaatsvinden onder opschortende voorwaarde van het verkrijgen van deze vergunning. Indien het uiteindelijke vergunde aantal eenheden afwijkt, wordt dit correct en transparant verrekend volgens een gelijkwaardige (equivalente) basis.
Kortom: een strategisch gelegen ontwikkelingsgrond met sterke commerciële troeven, minimale risico’s en een uitstekend rendementspotentieel in een regio met groeiende vraag. Lees meer Verberg
Dit bouwklare hoekperceel van ca. 8,5 are is rustig gelegen aan een charmant pleintje met voldoende parkeermogelijkheden, aan de Nieuwe Kempen 10. De ligging vormt een absolute troef: op de grens van Genk en Houthalen-Helchteren geniet u van een dubbele instroom aan potentiële kopers en huurders. Deze regio kent een sterke vraag naar kwalitatieve nieuwbouwappartementen, terwijl het aanbod beperkt blijft—een combinatie die zorgt voor een bijzonder interessant investeringsprofiel.
De omgeving biedt een aangename mix van rust en bereikbaarheid. Op korte afstand bevindt zich het uitgestrekte Nationaal Park Hoge Kempen, een absolute trekpleister voor natuurliefhebbers en recreanten. Daarnaast ligt ook Labiomista vlakbij, een unieke ontmoetingsplek waar kunst, natuur en erfgoed samenkomen. Dit maakt de locatie niet alleen aantrekkelijk voor bewoners, maar verhoogt ook de waarde en uitstraling van elk toekomstig project.
Het perceel is ideaal voor residentiële ontwikkeling. ... Momenteel loopt er een vergunningsaanvraag voor de realisatie van 21 appartementen. De verkoop zal plaatsvinden onder opschortende voorwaarde van het verkrijgen van deze vergunning. Indien het uiteindelijke vergunde aantal eenheden afwijkt, wordt dit correct en transparant verrekend volgens een gelijkwaardige (equivalente) basis.
Kortom: een strategisch gelegen ontwikkelingsgrond met sterke commerciële troeven, minimale risico’s en een uitstekend rendementspotentieel in een regio met groeiende vraag. Lees meer Verberg