Uniek juweelstuk in centrum Blankenberge
Verkocht Blankenberge Van Mullemstraat 7
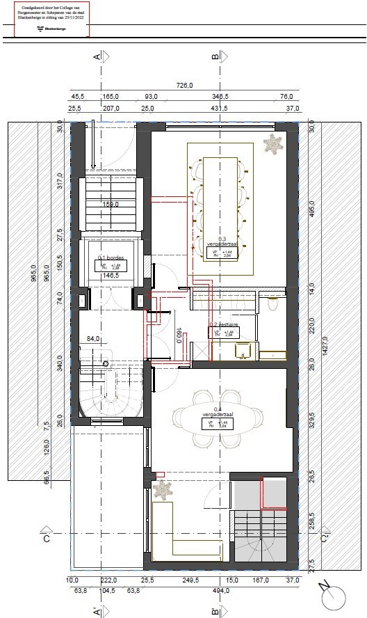
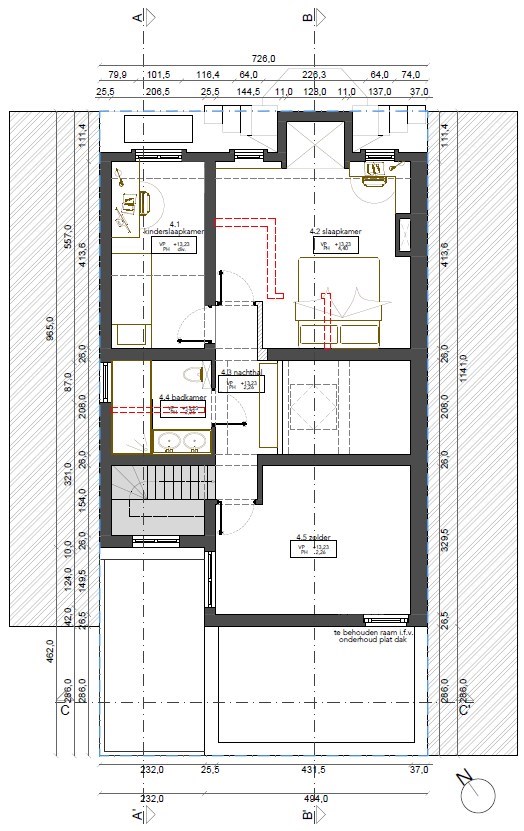
Ontdek dit charmante bel-étage pand, gelegen in het schilderachtige Blankenberge, op slechts een steenworp afstand van het betoverende strand. Gebouwd in 1905, ademt dit handelshuis nog steeds de authentieke charme van die periode uit, met een bewoonbare oppervlakte van maar liefst 556m² biedt het de perfecte ruimte voor een gezinswoning met kantooruimte. Dit prachtig stukje geschiedenis kan ook dienst doen als B&B gezien te topligging mits het bekomen van de vereiste verginningen.
Met een charmante, beschermde gevel, royaal inkomhal en hoge plafonds als architecturaal hoogtepunt straalt het luxe uit en trekt alle aandacht. Het meest kostelijke werken is al uitgevoerd. Met een goedgekeurde bouwvergunning voor een triplex kantoor en duplex appartement, zijn alleen nog technische en interieurafwerkingen nodig, waarvoor 3D-renderings beschikbaar zijn.
Met een energielabel C getuigt deze woning van een doordacht ontwerp, wat resulteert in uitstekende isolatie en een energiezuinige levensstijl. Dit niet alleen omarmt lagere ... energiekosten, maar draagt ook bij aan een milieubewuste leefomgeving.
Dankzij de gunstige ligging, vormt deze woning het perfecte toevluchtsoord om te genieten van het kustleven in Blankenberge. Met een overvloed aan restaurants, cafés en winkels op slechts enkele minuten lopen, samen met nabijheid tot scholen, culturele faciliteiten en het strand, is het een ideale plek voor gezinnen en ondernemers. Met zijn historische allure en moderne voorzieningen vertegenwoordigt deze woning een unieke kans om te wonen in een van de meest geliefde badplaatsen van België.
Deze levendige buurt is perfect voor diverse projecten, wat resulteert in waardevermeerdering en rendement voor investeerders. Het pand biedt een solide financiële basis en een veelbelovende waardestijging, waardoor de bank gerechtvaardigd is in het verstrekken van financiering voor dit veelbelovende vastgoedproject.
Kenmerken:
-Buitengevel, ramen, deuren en dak zijn volledig gerenoveerd volgens de regels der kunst
-Gunstig EPC score van 283 kWh/m²
-Geen asbest aanwezig
-Lift aanwezig in het gebouw
Dit handelshuis biedt heel wat potentieel, aarzel dus niet om nu uw afspraak vast te leggen voor een bezichtiging!
Lees meer Verberg
Met een charmante, beschermde gevel, royaal inkomhal en hoge plafonds als architecturaal hoogtepunt straalt het luxe uit en trekt alle aandacht. Het meest kostelijke werken is al uitgevoerd. Met een goedgekeurde bouwvergunning voor een triplex kantoor en duplex appartement, zijn alleen nog technische en interieurafwerkingen nodig, waarvoor 3D-renderings beschikbaar zijn.
Met een energielabel C getuigt deze woning van een doordacht ontwerp, wat resulteert in uitstekende isolatie en een energiezuinige levensstijl. Dit niet alleen omarmt lagere ... energiekosten, maar draagt ook bij aan een milieubewuste leefomgeving.
Dankzij de gunstige ligging, vormt deze woning het perfecte toevluchtsoord om te genieten van het kustleven in Blankenberge. Met een overvloed aan restaurants, cafés en winkels op slechts enkele minuten lopen, samen met nabijheid tot scholen, culturele faciliteiten en het strand, is het een ideale plek voor gezinnen en ondernemers. Met zijn historische allure en moderne voorzieningen vertegenwoordigt deze woning een unieke kans om te wonen in een van de meest geliefde badplaatsen van België.
Deze levendige buurt is perfect voor diverse projecten, wat resulteert in waardevermeerdering en rendement voor investeerders. Het pand biedt een solide financiële basis en een veelbelovende waardestijging, waardoor de bank gerechtvaardigd is in het verstrekken van financiering voor dit veelbelovende vastgoedproject.
Kenmerken:
-Buitengevel, ramen, deuren en dak zijn volledig gerenoveerd volgens de regels der kunst
-Gunstig EPC score van 283 kWh/m²
-Geen asbest aanwezig
-Lift aanwezig in het gebouw
Dit handelshuis biedt heel wat potentieel, aarzel dus niet om nu uw afspraak vast te leggen voor een bezichtiging!
Lees meer Verberg